This cosy country cottage with its own two-storey garage is on the market for €189,000
By Sarah Finnan
18th Jan 2023
18th Jan 2023
With traditional cottage features and a quiet rural location, this charming two-bedroom home in Co Offaly would be a dream for those who enjoy a slower, more peaceful way of life.
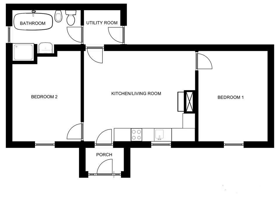
Inside, the accommodation spans 646 sq. ft. and comprises a porch, kitchen, living room, two bedrooms, main bathroom and a utility room. The interior is finished to a high standard – in keeping with an authentic rural cottage style.

The kitchen is a large room with traditional stone flooring throughout. A beautiful stone fireplace with solid fuel stove has been fitted for warmth with a granite worktop, sheeted timber ceiling and wooden cabinets amongst the other standout features.

A washing machine and fridge/freezer can be found in the utility room, located just off the kitchen.

Elsewhere in the house, the bedrooms have been tastefully furnished – each with solid beech timber floors and Venetian blinds. Both rooms have statement walls; one has been painted a modern olive green colour, the other a soothing mushroom tone.

The family bathroom – which has been tiled with black and white flooring – has both a shower and a bath. Wainscott wall panelling has also been fitted in this room along with a bidet.

Externally, the property has well-maintained mature gardens, a tarmacadam driveway and a large garage/workshop arranged over two floors which could easily be transformed into a home office/gym.
Located adjacent to the Grand Canal, the cottage is grounded in nature – undisturbed by the outside hustle and bustle. Approximately 3km from Ferbane and only 30 minutes from Athlone, there are myriad facilities nearby including shops, restaurants, pubs and other such amenities. Galway city is also conveniently close and can be reached in under 1 hour and 15 minutes by car.
Currently on the market for €189,000 this property would be the ideal home for a first-time buyer. Viewing of this property comes highly recommended and can be arranged through DNG Glen Corcoran. In the meantime, take a closer look inside the property through our gallery below.











