This distinctive, light-flooded Foxrock four-bed is on the market for €1.35 million
Sensitively built around the grounds of the original Kilteragh House back in the 1970s, this Foxrock home is a real hidden gem.
Nestled away at number 16 Kilteragh Pines, Foxrock, Dublin 18, this four-bedroom, three-bathroom property is on the market for €1,350,000 through Eoin O’Neill Property Advisers.
Rare to the market and architecturally distinctive, this Foxrock home is a detached single level property with separate double garage and a south facing rear garden set on a half acre plot.
Sensitively built in 1972 around the grounds of the original Kilteragh House, amongst evergreen pines, Kilteragh Pines is a small cluster of homes and is a real hidden gem. Its location, off exclusive Westminster Road, is fantastic, and Foxrock Village, with its chic boutiques, cafés, restaurants, and specialist food shops, can be reached in just a few minutes walk.
Approached along the development road via a charming arch, there is a substantial driveway leading up to number 16 and a large double garage off to the side of the house. The gardens wrap the house on all sides with the main rear garden having the benefit of a south-facing aspect where there is a real sense of almost rural seclusion.
Largely in its original condition, the potential of the property is clear. Modernise, extend and enhance this architecturally special home to your own needs, making the most of its unique setting and half acre plot.
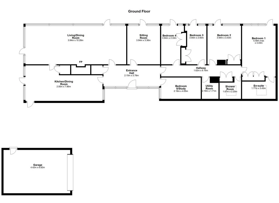
The internal living space extends to approximately 180sq.m/1940 sq.ft and the layout is designed to suit a young and growing family, with an expansive living/dining room, family television room and four bedrooms arranged on the rear southside with a dramatic wall of windows that connect all rooms to the south facing garden.
On the other side, to the front of the property, you will find the kitchen (connecting to the front courtyard garden), the spacious entrance hall with floor-to-ceiling glazing, study, the family bathroom and a utility room. The garden is a particularly nice feature. It is extensive and private and benefits from all-day sun orientation. The development itself is very unique and the communal grounds incorporate parts of the gardens of Kilteragh House in their original plan.
Within easy reach of Kilteragh Pines, there is a vast choice of amenities. The main local shopping areas of Blackrock, Stillorgan, Cornelscourt and Deansgrange provide shopping centres, boutiques, cafes and restaurants. The retail park at Carrickmines is a few minutes’ drive and of course, in Foxrock Village itself, you can enjoy The Gables, The Scarlett Heifer, Kerb Cafe and Restaurant, Thomas Fine Foods and more. Leopardstown Race and Golf Course and Foxrock Course are at hand. There is also a great choice of both primary and secondary schools which are convenient to the house.
There are regular bus services to the city and surrounding suburbs available along the N11 and the LUAS is available at the Carrickmines stop. The M50 is also easily accessible.
Take a full tour of 16 Kilteragh Pines, Foxrock, Dublin 18 through our gallery below, or organise a viewing through Eoin O’Neill Property Advisers.







